通常DIPIPM™在功率变换装置中起逆变作用,主要功能是把来自母线的直流电通过IGBT等功率器件的有序开关逆变成电压、频率可调的交流电供驱动负载使用。其工作的主要特点是高温、高压、大电流、开关速度快。DIPIPM™内部既有IGBT等功率器件,又有用于驱动的HVIC、LVIC,因而又是一种典型的复合器件,内部既有强电又有弱电,既有高温工作器件又有低温工作器件,在DIPIPM™的PCB布线中必须考虑这些不同的器件对于布线的不同要求及它们之间的兼容性。良好的布线有助于提高DIPIPM™的安全性、稳定性及寿命,降低PCB控制板的噪声水平。为了更好地理解良好的布线与NG(不良)布线的区别,本节将对主电路地线设计、吸收电容的位置、控制电源地线设计、自举电源设计、PWM控制信号走线,短路(SC)保护的推荐布线及NG(不良)布线进行介绍。
主电路地线设计举例

图4|主电路地线设计
上图4给出了DIPIPM™主电路地线的推荐走线和不良走线例,其中VN是由主电路地线寄生电感导致的噪声,在实际布线中,需要将主电路地线设计得最短,以降低噪声VN。
吸收电容的位置

图5|吸收电容的位置
上图5给出了用于吸收母线浪涌电压的吸收电容的推荐位置。实际PCB布线中,如果吸收电容的位置被安排在位置(1),由于吸收电容距离DIPIPM™较远,存在母线寄生电感,使吸收电容对DIPIPM™的P-N间浪涌吸收能力下降;如果吸收电容位置在(2)的位置,由于吸收电容和引线电感产生的充放电电流将流过旁路电阻,在旁路电路上产生压降及噪声,可能导致DIPIPM™误保护;位置(3)是推荐的吸收电容的位置,该位置既考虑了吸收效果,又避免了在旁路电阻上产生噪声。
控制电源地线设计

图6|控制电源地线设计
上图6给出了DIPIPM™控制电源地线的推荐走线和不良走线例,其中VN是由于主电路地线和控制电源地线部分重合导致的噪声,在实际布线中,需要将控制电源地线与主电路地线的重合部分设计得最短,控制电源地线尽可能地靠近旁路电阻的端子,通过单点方式与主电路地线连接以降低噪声。
自举电源设计

图7|自举电源设计
上图7给出了DIPIPM™自举电源地线的推荐走线和不良走线例,需要特别指出的是,由于DIPIPM™上桥臂三路15V电源采用了自举方式进行供电,其自举15V电源的地同时也是DIPIPM™电流输出端子U、V、W,因而自举电源电路属于强电,在PCB布线中,需要将自举电路作为强电对待,保证与弱电的足够电气距离。U、V、W端子的输出线路在DIPIPM™工作时需要流过大电流,其走线上的寄生电感会在U、V、W输出线路上产生噪声,这就要求自举15V电源的地线走线尽可能靠近模块端子,以减小与U、V、W输出走线的重合,降低自举15V电源上的噪声。对于诸如SLIMDIP™系列的DIPIPM™,由于自举电源的地线集成在了模块内部,因此不再需要PCB上的自举15V电源地线走线,也不需要考虑图7所示的自举电源布线问题。
PWM控制信号走线

图8|PWM控制信号走线
DIPIPM™工作时需要输入6路PWM控制信号,这6路PWM控制信号为弱电,可以与单片机的输出管脚直接连接,PWM控制信号通常为5V或3.3V,这个信号容易受到噪声的干扰,在PCB布线时,需要特别注意对PWM控制信号走线的保护,不要把PWM控制信号布线与强电布线距离太近,或与强电信号发生交叉,如上图8所示。
短路(SC)保护相关布线

图9|短路(SC)保护部分设计
DIPIPM™具有短路(SC)保护功能,在输出发生短路时,可以及时地关闭IGBT来保护DIPIPM™模块。短路(SC)保护电路的布线需要尽可能地靠近旁路电阻的端子以避免干扰的产生。如图9所示,如果红颜色的短路(SC)保护电路布线距离旁路电阻端子太远,会在短路保护检测管脚Cin引入噪声,可能导致短路保护的误动作。
3.4.3
单个PCB上有多个DIPIPM™时的PCB设计要点
目前,越来越多的DIPIPM™被应用于空调变频压缩机驱动、伺服、直流风扇电机驱动等逆变器,以节省能源。对于某些应用,需要将多个DIPIPM™设计在同一PCB板上,以减小逆变器的尺寸和降低逆变器的成本。与单个PCB上有1个DIPIPM™相比,单个PCB上有多个DIPIPM™,在PCB布局和噪声抑制方面要困难得多。本节将介绍在单个PCB板上设计多个DIPIPM™时的布线注意事项,并给出典型布线案例。
与单个PCB上只有一个DIPIPM™相比,多DIPIPM™集成到1个PCB板上,可以减小控制器的体积,从而降低成本,与此同时,在PCB相关布线时,不同的DIPIPM™之间在工作时不可避免地相互影响,导致PCB布线难度加大。在进行多DIPIPM™布线时,首先需要了解各个DIPIPM™的不同规格及在电路中的不同功能,根据规格和功能进行总体布局。如1个大电流的DIPIPM™与1个小电流的DIPIPM™搭配在一起,布线时应优先考虑大电流的DIPIPM™相关布线;如果两个电流规格完全一样的DIPIPM™共用1个PCB板,设计时需要考虑二者的布线对称;如果3个以上的DIPIPM™共用1个PCB板,则需要考虑如何把DIPIPM™根据电流大小或功能进行分组布线。多DIPIPM™共用1个PCB板的另1个布线难点是DIPIPM™的地线设计,多DIPIPM™可能导致在PCB上存在多个地线环路,地线环路特别是功率地线的环路容易导致噪声增加,使DIPIPM™的工作稳定性下降。通常建议每个DIPIPM™的控制地分别与自身的强电地采用单点接地,再通过在不同的DIPIPM™地线环路中增加0欧电阻或小电感,减小地线环路间的相互影响。下图10、图11、图12分别给出了1个大电流的DIPIPM™搭配一个小电流DIPIPM™、2个大电流的DIPIPM™搭配、3个以上DIPIPM™搭配的PCB典型走线布局。
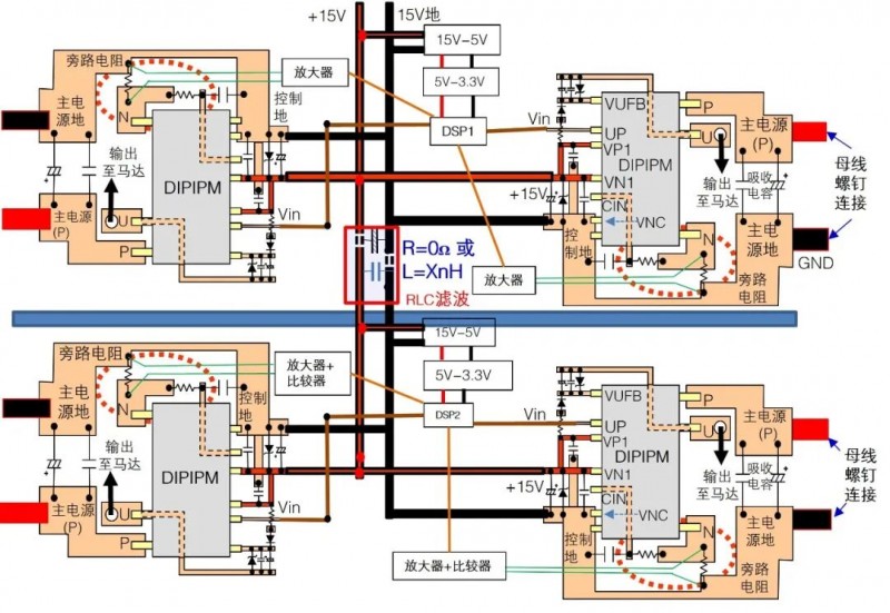
典型布局1

图10|典型布局1
该布局的优点:共用母线电容、15V电源和DSP芯片,减少了PCB面积,成本较低。
常见应用:1个大电流DIPIPM™和一个小电流DIPIPM™应用,如空调压机驱动+风机驱动。
典型布局2

图11|典型布局2
该布局的优点:母线电容分为2部分,共用15V电源和DSP芯片以及部分母线电容,减少PCB面积;
常见应用:2个大电流DIPIPM™应用,如3相PFC+3相逆变、伺服驱动器等。
典型布局3

该布局的优点:采用各自独立的母线电容,母线电压更稳定。共用15V电源和DSP芯片,减少PCB面积。
常见应用:3个以上DIPIPM™应用,如伺服、EV A/C(电动汽车空调)等。
本讲总结
本讲主要介绍了DIPIPM™的典型PCB布线设计要点。给出了推荐的DIPIPM™ PCB布线及不良的DIPIPM™ PCB布线例,并分享3个典型多个DIPIPM™的PCB设计典型布局。
主要术语说明
-
DIPIPM™、SLIMDIP™及DIPIPM+™均为三菱电机株式会社注册商标。
-
DIPIPM→双列直插式智能功率模块(Dual-in-line Intelligent Power Module)。
-
PCB→印刷线路板(Printed Circuit Board)。
-
DSP→数字信号处理器(Digital Signal Process)。
-
PFC→功率因数校正(Power Factor Correction)。
主要参考文献
[1] Mitsubishi Electric,“SLIMDIP Series Application note”
[2] Mitsubishi Electric,“Super mini DIPIPM Ver.6 Series Application note”
[3] Mitsubishi Electric,“Mini DIPIPM with BSD Series Application note”
[4] Mitsubishi Electric,“1200V Large DIPIPM Ver.6 Series Application note”
















